0
Nouveauté

DRANCY - CENTRE VILLE - TERRAIN A BATIR IMMEUBLE R+2 - 3 appartements de type T3

Drancy (93700)
Réf : VTE150011947

Chers bâtisseurs, investisseurs, marchands de biens, à vos téléphones !!

UNIQUE à Drancy ! En plein centre-ville à seulement 15min à pieds du Métro ligne 5 Bobigny, ce terrain viabilisé et sur lequel un permis de construire un immeuble en R+2 composé de 3 logements de type T3 avec 4 places de parking est une opportunité unique car le nouveau PLUi en vigueur ne l'aurait pas permis. 

Au pied d'un axe principal vous profiterez d'un emplacement de premier choix ! Idéal pour la revente de lots ou pour un investissement locatif.

Le projet de construction d'immeuble propose :

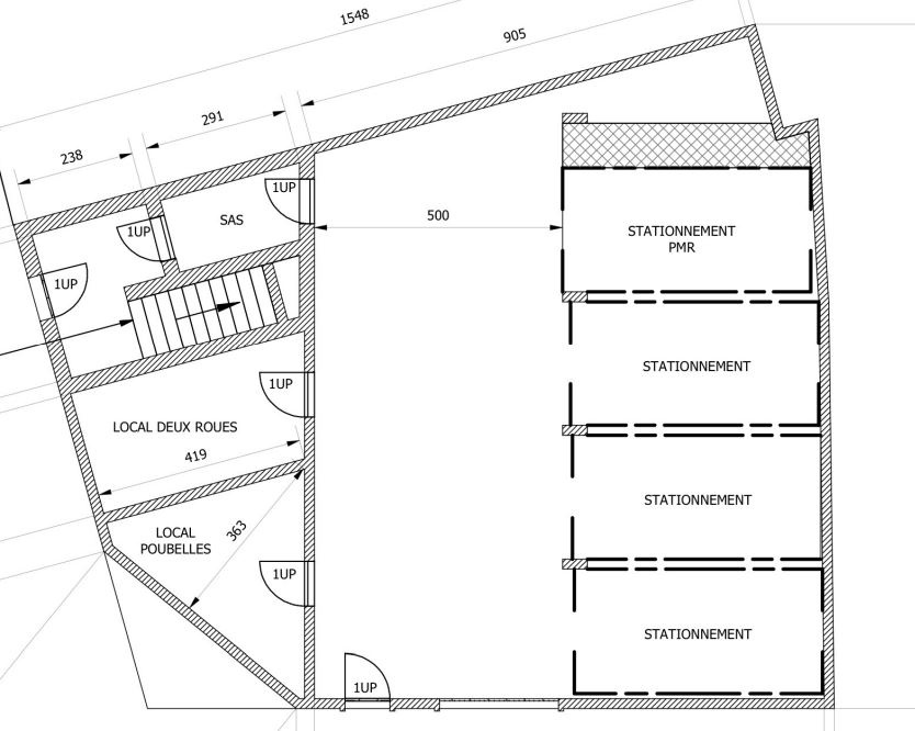
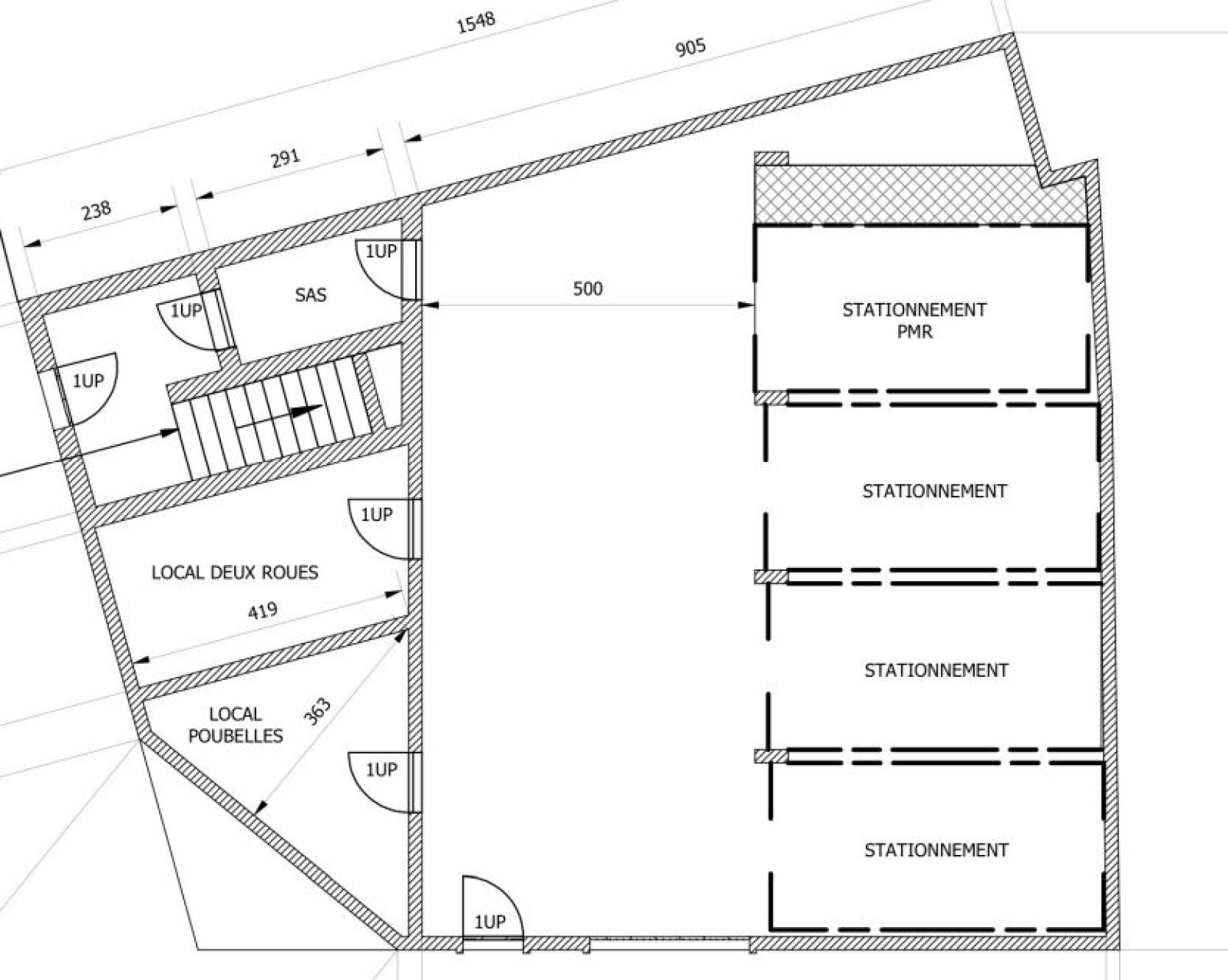
- Au RDC : 4 places de stationnement dont une handicapée, un local poubelle et un local 2 roues.

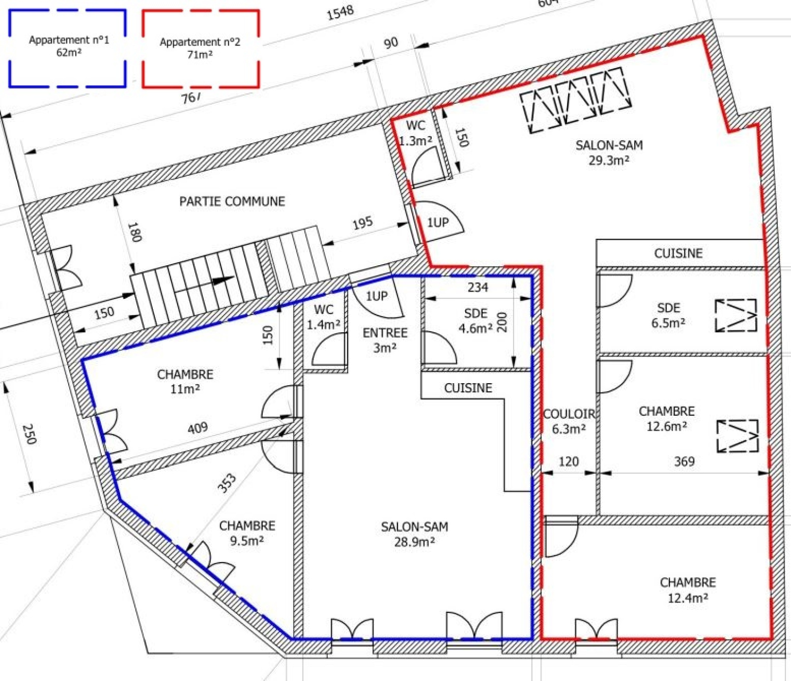
- Au 1er : 1 appartement T3 de 62m2, 1 appartement T3 de 71m2

- Au 2eme : 1 appartement T3 de 73m2.

Appelez-nous vite pour le réserver !! --> IMMO 5 Drancy

Prix du bien 268 000 €

Caractéristiques du bien

Caractéristiques Valeurs
Code postal 93700
surface terrain 180 m²
Terrain constructible OUI
Terrain Viabilisé OUI

Infos financières

Caractéristiques Valeurs
Prix de vente honoraires TTC inclus 268 000 €
Ce bien vous intéresse ?
Fieldset par défaut
Fieldset par défaut
Validation

* Champs obligatoires

Contacter l'agence
Validation
Les informations recueillies sur ce formulaire sont enregistrées dans un fichier informatisé par La Boite Immo agissant comme Sous-traitant du traitement pour la gestion de la clientèle/prospects de l'Agence / du Réseau qui reste Responsable du Traitement de vos Données personnelles. La base légale du traitement repose sur l'intérêt légitime de l'Agence / du Réseau. Elles sont conservées jusqu'à demande de suppression et sont destinées à l'Agence / au Réseau. Conformément à la loi « informatique et libertés », vous disposez des droits d’accès, de rectification, d’effacement, d’opposition, de limitation et de portabilité de vos données. Vous pouvez retirer votre consentement à tout moment en contactant directement l’Agence / Le Réseau. Consultez le site https://cnil.fr/fr pour plus d’informations sur vos droits. Si vous estimez, après avoir contacté l'Agence / le Réseau, que vos droits « Informatique et Libertés » ne sont pas respectés, vous pouvez adresser une réclamation à la CNIL. Nous vous informons de l’existence de la liste d'opposition au démarchage téléphonique « Bloctel », sur laquelle vous pouvez vous inscrire ici : https://www.bloctel.gouv.fr Dans le cadre de la protection des Données personnelles, nous vous invitons à ne pas inscrire de Données sensibles dans le champ de saisie libre.
Ce site est protégé par reCAPTCHA, les Politiques de Confidentialité et les Conditions d'Utilisation de Google s'appliquent.