0

DRANCY - 3 pièces TERRASSE

Drancy (93700)
Réf : V30011957

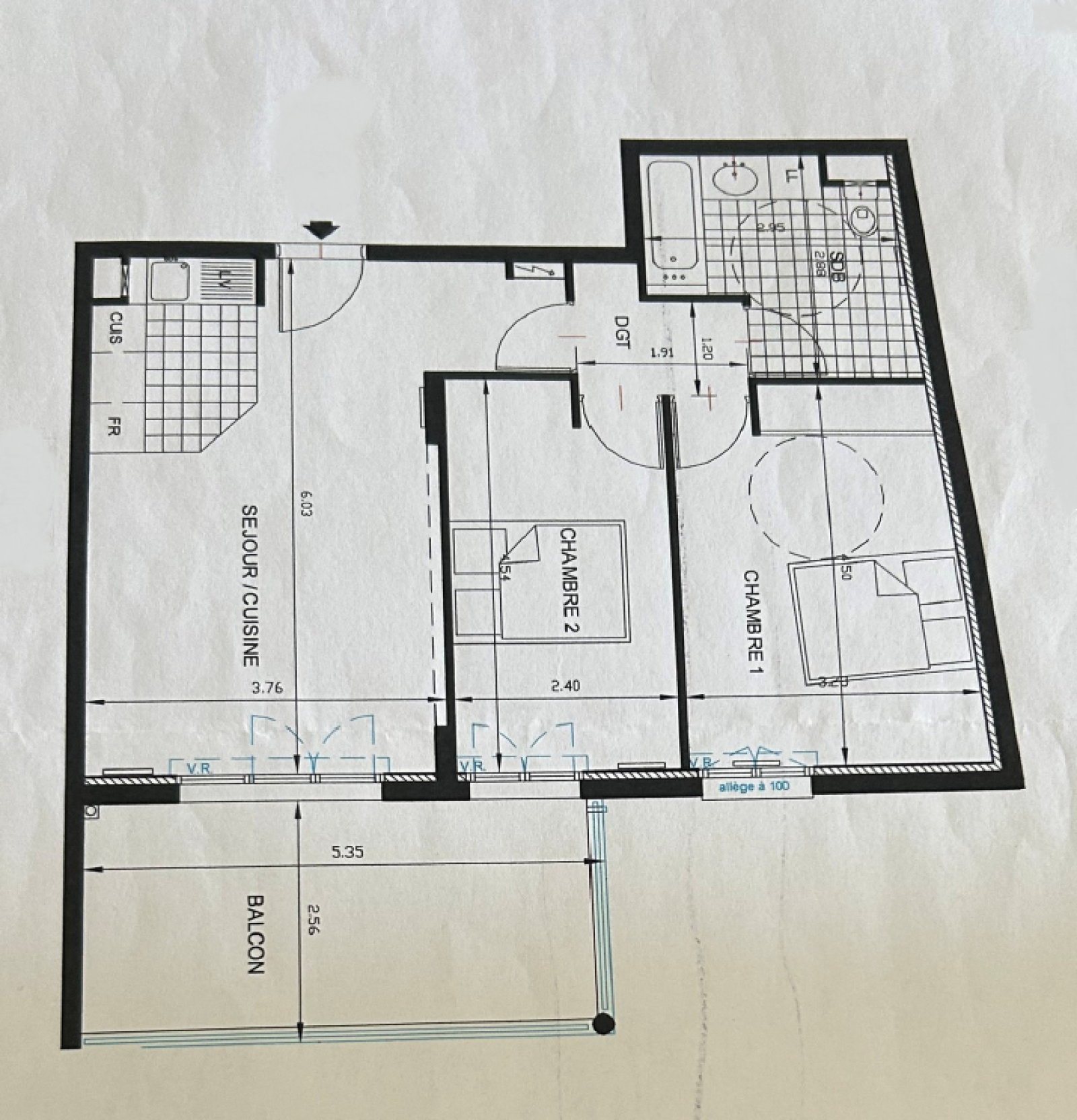
Appartement de type F3 d’environ 58 m², situé au 3ᵉ et dernier étage d’une résidence de standing. Il se compose d’une entrée ouvrant sur un séjour lumineux, avec cuisine américaine donnant accès à une superbe terrasse de plus de 13 m², exposée plein sud et offrant une vue imprenable. Un couloir dessert deux grandes chambres équipées de placards ainsi qu’une salle de bains avec toilettes. Une cave et une place de parking en sous-sol complètent ce bien rare. Lorsque le ciel est dégager vous pourrez meme apercevoir au loin le sacré coeur et la tour eiffel !! Alors n'attendez plus et venez visiter ce bijou !! 

découvrir le bien
Prix du bien 229 000 €
Pièce(s) 3
Chambre(s) 2

Caractéristiques du bien

Caractéristiques Valeurs
Code postal 93700
Surface habitable (m²) 58 m²
Surface loi Carrez (m²) 58,05 m²
Nombre de chambre(s) 2
Nombre de pièces 3
Etage 3
Ascenseur OUI
Nb de salle de bains 1
Cuisine Américaine
Type de cuisine Equipée
Mode de chauffage Electrique
Type de chauffage Convecteur
Format de chauffage Individuel
Interphone OUI
Visiophone OUI
Terrasse OUI
Cave OUI
Année de construction 2010

Infos financières

Caractéristiques Valeurs
Prix de vente honoraires TTC inclus 229 000 €
Charges 180 €
Taxe foncière annuelle 1 748 €

Bilans énergétiques

DPE GES
Ce bien vous intéresse ?
Fieldset par défaut
Fieldset par défaut
Validation

* Champs obligatoires

Contacter l'agence
Validation
Les informations recueillies sur ce formulaire sont enregistrées dans un fichier informatisé par La Boite Immo agissant comme Sous-traitant du traitement pour la gestion de la clientèle/prospects de l'Agence / du Réseau qui reste Responsable du Traitement de vos Données personnelles. La base légale du traitement repose sur l'intérêt légitime de l'Agence / du Réseau. Elles sont conservées jusqu'à demande de suppression et sont destinées à l'Agence / au Réseau. Conformément à la loi « informatique et libertés », vous disposez des droits d’accès, de rectification, d’effacement, d’opposition, de limitation et de portabilité de vos données. Vous pouvez retirer votre consentement à tout moment en contactant directement l’Agence / Le Réseau. Consultez le site https://cnil.fr/fr pour plus d’informations sur vos droits. Si vous estimez, après avoir contacté l'Agence / le Réseau, que vos droits « Informatique et Libertés » ne sont pas respectés, vous pouvez adresser une réclamation à la CNIL. Nous vous informons de l’existence de la liste d'opposition au démarchage téléphonique « Bloctel », sur laquelle vous pouvez vous inscrire ici : https://www.bloctel.gouv.fr Dans le cadre de la protection des Données personnelles, nous vous invitons à ne pas inscrire de Données sensibles dans le champ de saisie libre.
Ce site est protégé par reCAPTCHA, les Politiques de Confidentialité et les Conditions d'Utilisation de Google s'appliquent.