0

DEUX PIECES - RER A BRY SUR MARNE

Noisy-le-Grand (93160)
Réf : 84290426
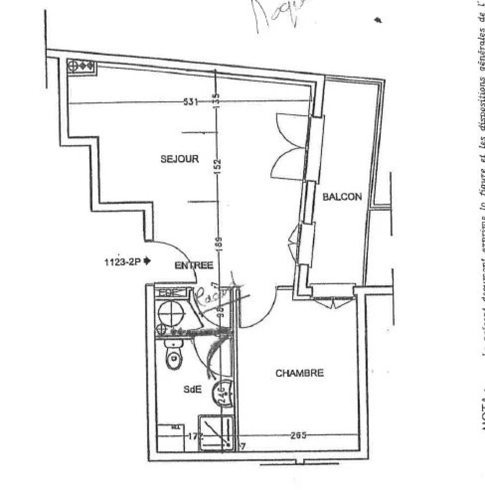
A 5 minutes à pied du RER A de Bry sur Marne et des commerces de proximités l'agence IMMO5 vous présente ce magnifique appartement deux pièces situé au 2eme étage avec ascenseur sur cour. Composé d'une entrée avec placard, un séjour avec cuisine ouverte équipée, une chambre, salle d'eau et WC. Balcon exposé Sud / Ouest accessible depuis le séjour et la chambre. Immeuble de standing ravalé en 2023. Plus aucuns travaux à prévoir. Annexe : place de parking en sous-sol.
Prix du bien 215 000 €
Pièce(s) 2
Chambre(s) 1

Caractéristiques du bien

Caractéristiques Valeurs
Code postal 93160
Surface habitable (m²) 33,40 m²
Surface loi Carrez (m²) 33,34 m²
Nombre de chambre(s) 1
Nombre de pièces 2
Etage 2
Vue Dégagée,Parc
Mode de chauffage Electrique
Type de chauffage Radiateur
Format de chauffage Individuel
Année de construction 2008

Infos financières

Caractéristiques Valeurs
Prix de vente 215 000 €
Les honoraires d'agence seront intégralement à la charge du vendeur  
Charges 100 €
Taxe foncière annuelle 862 €