0

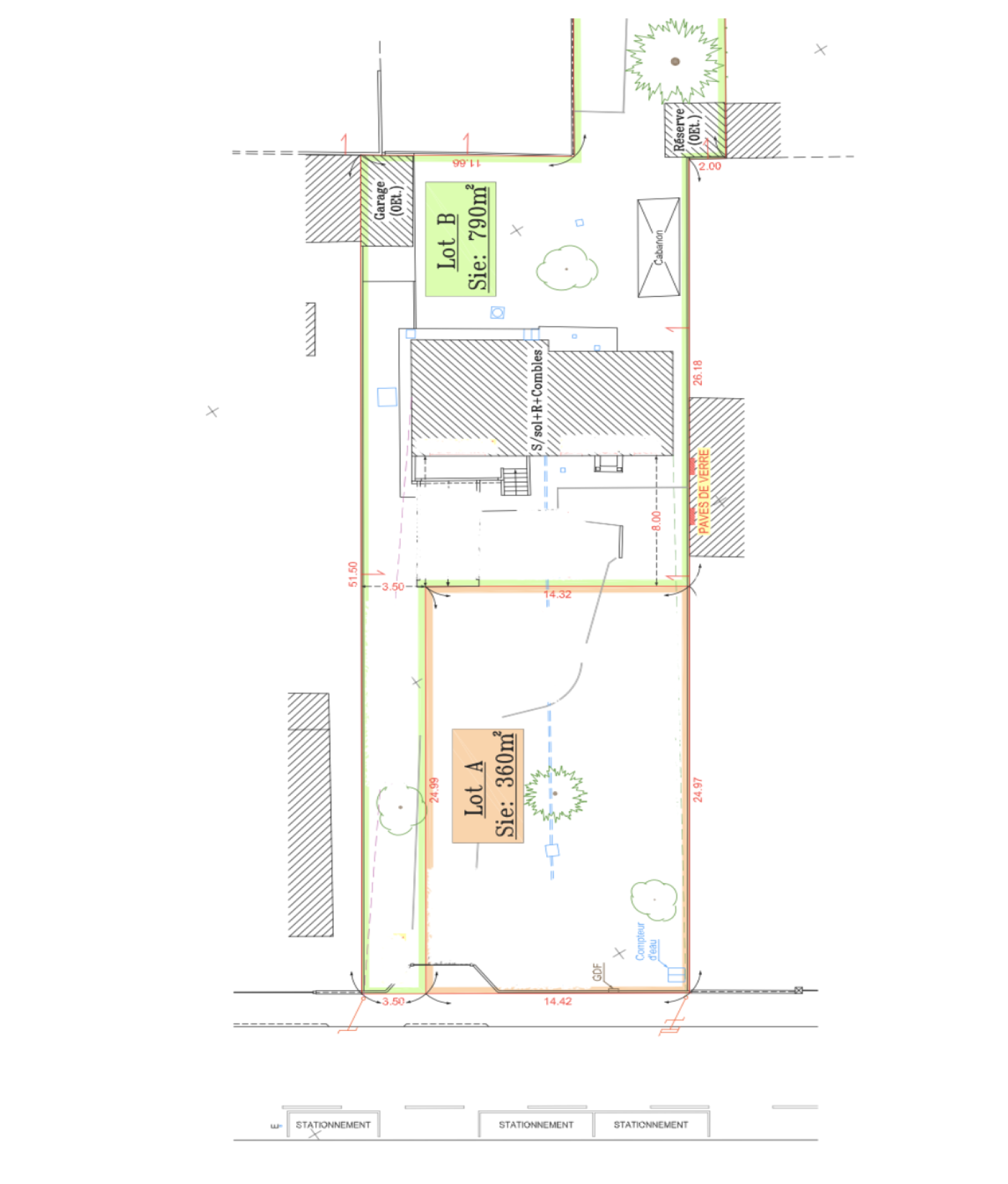
TERRAIN CONSTRUCTIBLE DE 360 M² - DEJA VIABILISE

Livry-Gargan (93190)
Réf : V240011386

Un terrain plat d'une surface de 360 m² en première position avec une façade de plus de 14 mètres linéaire avec permis de construire accordé pour une maison R+1+Combles, emprise au sol de la maison de 100m² de surface plancher. Viabilisé au tout l'égout - compteur d'eau et gaz déjà installé. Reste à installer compteur électrique à la charge de l'acquéreur. Lot A sur le plan. SECTEUR TRES RECHERCHE DE LIVRY GARGAN.

Prix du bien 230 000 €

Caractéristiques du bien

Caractéristiques Valeurs
Code postal 93190
surface terrain 360 m²
Vue MAGNIFIQUE
Terrain constructible OUI
Exposition Sud
Terrain Viabilisé OUI

Infos financières

Caractéristiques Valeurs
Prix de vente honoraires TTC inclus 230 000 €
Ce bien vous intéresse ?
Fieldset par défaut
Fieldset par défaut
Validation

* Champs obligatoires

Contacter l'agence
Validation
Les informations recueillies sur ce formulaire sont enregistrées dans un fichier informatisé par La Boite Immo agissant comme Sous-traitant du traitement pour la gestion de la clientèle/prospects de l'Agence / du Réseau qui reste Responsable du Traitement de vos Données personnelles. La base légale du traitement repose sur l'intérêt légitime de l'Agence / du Réseau. Elles sont conservées jusqu'à demande de suppression et sont destinées à l'Agence / au Réseau. Conformément à la loi « informatique et libertés », vous disposez des droits d’accès, de rectification, d’effacement, d’opposition, de limitation et de portabilité de vos données. Vous pouvez retirer votre consentement à tout moment en contactant directement l’Agence / Le Réseau. Consultez le site https://cnil.fr/fr pour plus d’informations sur vos droits. Si vous estimez, après avoir contacté l'Agence / le Réseau, que vos droits « Informatique et Libertés » ne sont pas respectés, vous pouvez adresser une réclamation à la CNIL. Nous vous informons de l’existence de la liste d'opposition au démarchage téléphonique « Bloctel », sur laquelle vous pouvez vous inscrire ici : https://www.bloctel.gouv.fr Dans le cadre de la protection des Données personnelles, nous vous invitons à ne pas inscrire de Données sensibles dans le champ de saisie libre.
Ce site est protégé par reCAPTCHA, les Politiques de Confidentialité et les Conditions d'Utilisation de Google s'appliquent.