0
Vendu

CENTRE VILLE

Bry-sur-Marne (94360)
Réf : 3216929
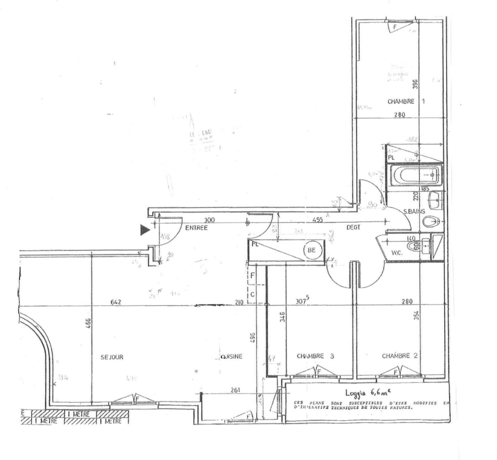
DANS UNE RÉSIDENCE RÉCENTE BEL APPARTEMENT COMPRENANT ENTRÉE,CUISINE,SÉJOUR,3 CHAMBRES,SALLE DE BAINS, WC. CAVE ET PARKING AU SOUS SOL. TRAVAUX DE RAFRAÎCHISSEMENT A PRÉVOIR. TRÈS BIEN SITUE !!
Prix du bien 388 500 €
Pièce(s) 4
Chambre(s) 3

Caractéristiques du bien

Caractéristiques Valeurs
Code postal 94360
Surface habitable (m²) 87,45 m²
Nombre de chambre(s) 3
Nombre de pièces 4
Nb de salle de bains 1
Mode de chauffage Electrique
Type de chauffage Autre
Format de chauffage Individuel
Cave OUI

Infos financières

Caractéristiques Valeurs
Prix de vente 388 500 €
Les honoraires d'agence seront intégralement à la charge du vendeur  
Charges 130 €